Come Eugène de Rastignac, personaggio balzacchiano che approda dalla provincia francese alla capitale (che si avvierà a conquistare), anche Gustave Courbet, pittore provinciale di Ornans, città confinante col Jura, arriva a Parigi ventenne, desideroso di gloria, nel 1839. La serie degli splendidi autoritratti giovanili dipinti tra gli anni quaranta e il decennio successivo, in cui appare continuamente in ogni mozione degli affetti, persino come pazzo o disperato, contrappunta e descrive le tappe del suo difficile percorso, ma al contrario di altri artisti, scrittori e personaggi da romanzo, anche a Parigi il legame con la sua città rimarrà per Courbet intensissimo .

Il padre, Régis, fa costruire per Jean Désirée Gustave un primo piccolo Atèlier nel 1849, a Ornans. Il paesaggio di Ornans ritorna spesso negli sfondi dei suoi dipinti, ad esempio nell’Autoritratto con la pipa della metà degli anni 1840, dove il pittore appare giovane, magro, investito dal bagliore rosso di un tramonto tizianesco che sembra stingere sugli zigomi e dove il bianco della camicia contrasta drammaticamente col verdeazzurro della maglia.



Sebbene dall’arrivo a Parigi al momento del successo passi più di un decennio, ritmato da una sequenza di quadri straordinari ( tra cui, celeberrimi, il Funerale ad Ornans; L‘Origine du mond; Il Cervo, dalla vendita del quale tenterà di ricavare i soldi per la costruzione di un nuovo Atélier;le fanciulle sulla riva della Senna; L’atelier del pittore, quello di Parigi, affollato di colleghi modelle ed amici) Courbet non perderà mai il rapporto privilegiato col paese natale, dove programma accuratamente la costruzione e la sistemazione di un suo nuovo spazio di lavoro, impegnandosi personalmente nelle operazioni da compiere per realizzare il progetto
L’Atèlier di Ornans, appena finito di restaurare in questi giorni, fine 2021, svolge un ruolo essenziale, legato ad un gruppo di opere, realizzate nei 10 anni che corrono fra il 1860 e il 1870. alle quali si deve gran parte del contributo del Pittore all’Arte figurativa del XIX secolo. La svolta nella costruzione e nell’acquisto del terreno avviene casualmente:Bleaudeau, impresario, si offre di costruire e fargli credito; Courbet tira un sospiro di sollievo, compra un terreno grande abbastanza per piantarci un giardino con alberi da frutto e, probabilmente, incarica l’Architetto Léon Isabey di fare il progetto . Isabey fa un progetto troppo cittadino e costoso, rifiutato.

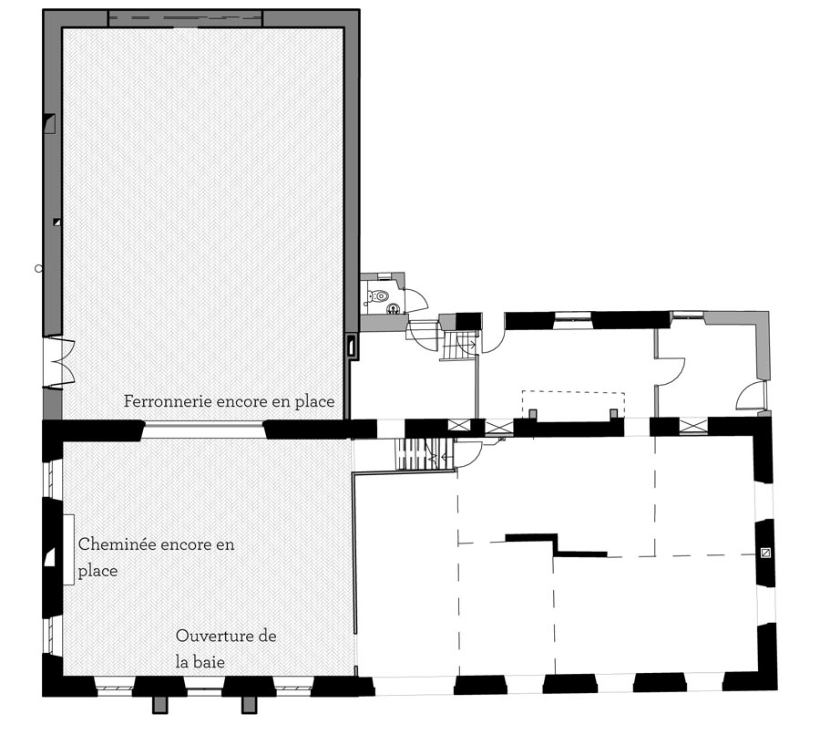
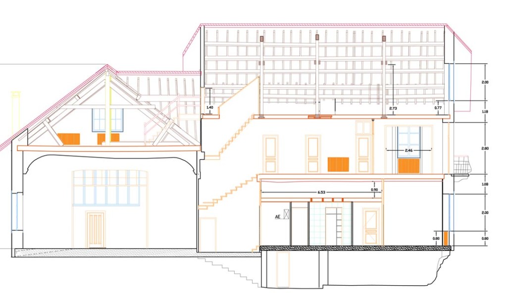
Non sappiamo infine chi ha fatto il progetto dell’edifico: un piano, superficie netta circa 8 m. x 23m. , con un interrato che interessa circa metà e una stanza accessoria sul retro. Un progetto molto ben studiato:una grande stanza con servizio e l’Atélier, con l’apertura principale verso il giardino e una copertura piana, con raccordi a padiglione alle pareti verticali: scelte che testimoniano di un intervento diretto del pittore e una qualche maestria dell’ignoto progettista. Dopo molte esitazioni, che riguardano la scelta di un terreno adatto, finalmente nell’Agosto del 1860 i lavori sono avviati, quasi conclusi nel Settembre successivo. I viaggi a Parigi sono tuttavia continui, e arredi , sistemazioni interne e piccoli lavori sono documentati fino all’Agosto del 1867. Mentre si assesta infatti nel ruolo di capofila di una scuola realista parigina, in varie lettere lo studio di Ornans è al centro delle sue preoccupazioni. Cita i colori delle pareti, il soffitto azzurro come il cielo, persino un mobile da mettere tra due finestre del salone dello studio. In una lettera a un collaboratore, del 6 aprile 1866, diciassette anni dopo il suo trasferimento a Parigi, Courbet parla con assoluta passione e conoscenza della sistemazione e dell’ampliamento del suo frutteto.


Giulio Balduini, Architecte du Patrimoine del Dipartimento di Doubs, massiccio del Jura, Franca Contea, del quale ci siamo già occupati su questo sito ( 13 Marzo 2021, Un Architetto romano al lavoro su Ledoux ) , si trova davanti una situazione edilizia quasi completamente cambiata : nei primi tre decenni del Novecento, infatti, una grande aggiunta chiude all’Atélier la vista del giardino e la stanza attigua viene ampliata e sopraelevata: l’unico esterno che conserva tracce consistenti del progetto originale è la parte inferiore del prospetto su Avénue du Marechal de Lattre de Tassigny, come mostra la ricerca condotta da Stephanie Honnert nell’ambito del gruppo di lavoro.





All’analisi storica di Giulia Balduini si aggiunge un accuratissimo studio della consistenza dei décors peinte dell’Atélier e del suo ampliamento,affidato ad un gruppo di specialisti ( ECHM ) e l’Architetto procede al Restauro dell’interno e ad una importante scelta di merito : quella di trattare in modo unitario l’Atélier ed il suo ampliamento novecentesco. Scelta dettata probabilmente dalla continuità spaziale dei due ambienti: la grande apertura sul giardino, infatti, costituisce ora una comunicazione spaziale ampia fra i due ambienti. Vieppiù connessi dal colore rosso delle pareti, faticosamente scelto sui resti del colore originale dopo innumerevoli prove. Con la stessa cura sono anche scelti tutti i materiali messi in opera, dalle nuove strutture in legno del tetto, al manto di copertura di tegole in cotto; uniche eccezioni all’interno delle sopraelevazioni, dove vengono date risposte alle nuove esigenze funzionali con materiali moderni ed una certa spregiudicatezza strutturale. Conseguenze della difficile operazione del progettista che si trova di fronte al doppio binario della conservazione della nuova funzione museale alla quale l’edificio sarà adibito. Unica via d’uscita, una eccellente qualità architettonica del prodotto finale, come proprio, anche in questo caso, fa Balduini.
Antonella Greco, Carlo Severati


English abstract
Even during his numerous stays in Paris, the tie of Gustave Courbet with his native town, Ornans, rhile the painter painstakingly finishes the construction and the arrangement of space in his workshop over there, personally surveying the operations. The Ornans Workshop, whose restoration has finally been completed in late 2021, plays an essential role in Courbet’s career. Its importance can be found in a group of major works made over the decade 1860-1870 emained a deep, intense one. Its landscape keeps on returning as a background in his paintings, w.
A big room with facilities, Courbet’s Atelier opened on the garden. It was covered by a flat roofing, joined to the walls with a continuos half vaults system: design choices that prove the painter’s direct intervention and the unknown architect’s skills. Courbet speaks with passionate overtones of the arrangement and extension of his orchard. Giulio Balduini, Architecte du Patrimoine of the Doubs Department, Jura Mountains, Franche-Comté region, responsible for the workshop’s restoration, was faced with a thoroughly changed situation: in fact, over the first three decades of the 20th century, a large extension was built closing the view on the garden, the adjacent room was expanded, and an extra storey added. The large window on the garden now serves as a wide special communication between the two units. This communication is emphasized by the red colour on the walls of both, a hard choice after many essays based on the remnants of the original tint.
The only way out, an excellent architectural quality of the finished product, as the one we can observe in Balduini’s restoration. (Carla Scura)
Devi effettuare l'accesso per postare un commento.