Con una presentazione di Carlo Severati
… Un piccolo compound elettrico, nel quale il comfort ambientale è l’imperativo centrale …
presentazione di Carlo Severati
Un piccolo compound elettrico, nel quale il comfort ambientale è l’imperativo centrale, involucrato da una garbata variante storicista. Il progetto porta avanti la ricerca specificamente architettonica sulla traccia obbligata della condizione ambientale e della sociologia del cliente, intelligente e relativamente colto; è sulla linea degli insediamenti upper class di qualche decennio fa, oggi in vendita , sui quali si affaccia l’ evoluzione di una categoria sociale simile, più frugale, come chiedeva Soleri vent’anni fa.
Santa Clara, Sonoma, California; questo progetto dell’Architetto Pierluigi Serraino chiude un ciclo cominciato fra l’Ottobre e il Dicembre 2017, con gli incendi – i più grandi a memoria d’uomo – che hanno devastato grandi aree della California a Nord di San Francisco. Le normative locali hanno imposto che la nuova costruzione venisse realizzata sullo stesso luogo di una di quelle andate in fumo con gli incendi. Si ripropone così l’icona di un paesaggio storico relativamente recente, nel quale grandi residenze supersiti conservano intatto l’alto valore di mercato. Una facies consonante con la Santa Chiara di Francesco specificamente richiesta dal committente.
Esistono innumerevoli combinazioni in architettura per esprimere il rapporto fra le proprie radici e la contemporaneità. In questo caso, il committente, un professionista americano di origine italiane, ha richiesto uno spazio residenziale evocative, sull’esempio del vernacolo rurale delle regioni centro-settentrionali italiane ma che fosse allo stesso tempo, contemporaneo nella logica e nella distribuzione dello spazio interno.
Il lotto, situato nella contea di Sonoma, a nord della Baia di San Francisco, è stato devastato da un grande incendio nell’autunno del 2017 assieme ai territori circostanti. Un paesaggio desolante ad un primo sopralluogo, il cui recupero conferisce al progetto di architettura una carica fortemente simbolica e rigenerativa, conferendogli la veste di un atto di fede nel futuro.
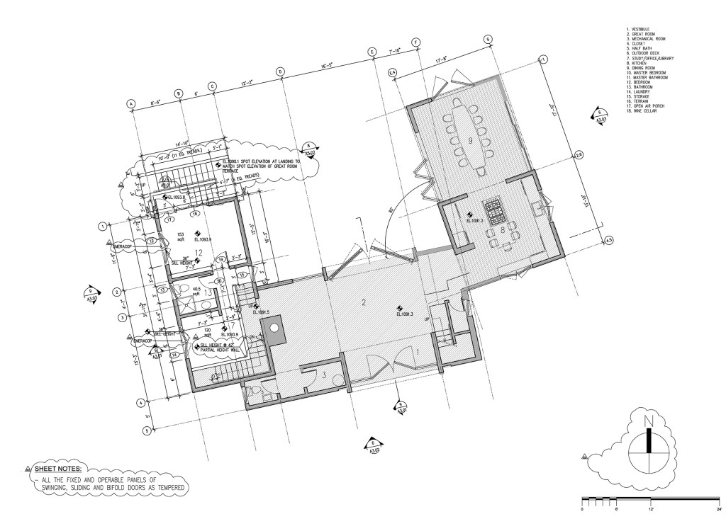
Il programma edilizio comprende una villa unifamiliare di 220 m2 e un’unita’ residenziale adiacente di 75 m2, su una topografia collinare simile a molte aree naturali del nostro Paese; il nucleo e il perno degli spazi comuni e’ la vista panoramica verso nord, sulla vallata circostante.
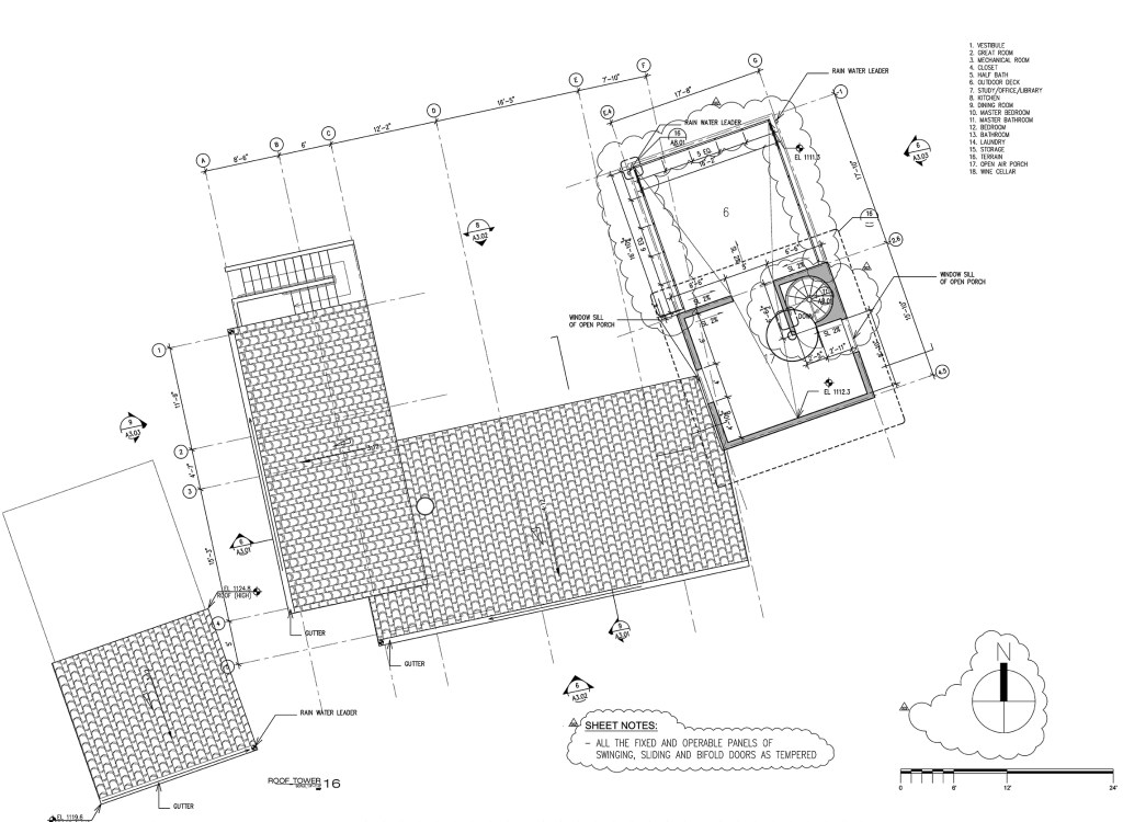
In planimetria i vari corpi edilizi sono configurati in modo tale da creare la scenografia di un’architettura spontanea, quasi come se fosse cresciuta col tempo. L’ascesa dal sentiero d’accesso termina in un invaso contrassegnato da volumi a pianta rettangolare con giacitura ad angoli diversi fra loro. La torre, unico segno verticale del complesso, segnala sul territorio la presenza di questa architettura. Il disegno degli spazi aperti tra le due masse distaccate, reitera il carattere organico dell’impianto.
I livelli sfalsati della sezione longitudinale rivelano una circolazione interna fluida, aperta, dove l’asse visivo penetra in profondita` spazi distanti fra loro, caratteristica della open plan della villa californiana; all’ingresso un salone a tutt’altezza suddivide le zone piu` private. Una scala a vista porta alla camera matrimoniale dalla quale si accede, attraverso una scala elicoidale, ad una piattaforma panoramica parzialmente coperta da una tettoia. Sono molteplici i riferimenti architettonici che hanno alimentato questo progetto: dalla “architettura senza architetti” di Bernard Rudofsky, ai tetti a farfalla di Arne Jacobsen,









Devi effettuare l'accesso per postare un commento.